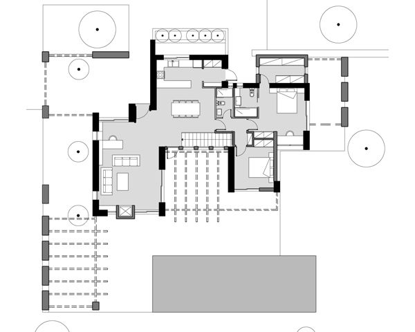
Ανεξάρτητη μόνιμη κατοικία στην περιοχή Ξηροπήγαδο κοντά στο Ναύπλιο. Σε προνομιακή παραθαλάσσια τοποθεσία με ανεμπόδιστη θέα και ιδιαίτερο φυσικό περιβάλλον.

Έργα : Κατοικία στο Ναυπλιο